Multi-disciplinair tekenbureau CAD Drawing & Modeling

Welkom bij CAD Drawing & Modeling – uw Multi-disciplinaire partner in tekenwerk. Met onze specialisatie in de bouw- en installatie sector voorzien wij klanten van een totaalpakket. CAD Drawing & Modeling is uw betrouwbare partner voor al uw teken- en modelleringsbehoeften in de bouw- en installatiesector. aan diensten, van concept tot realisatie.

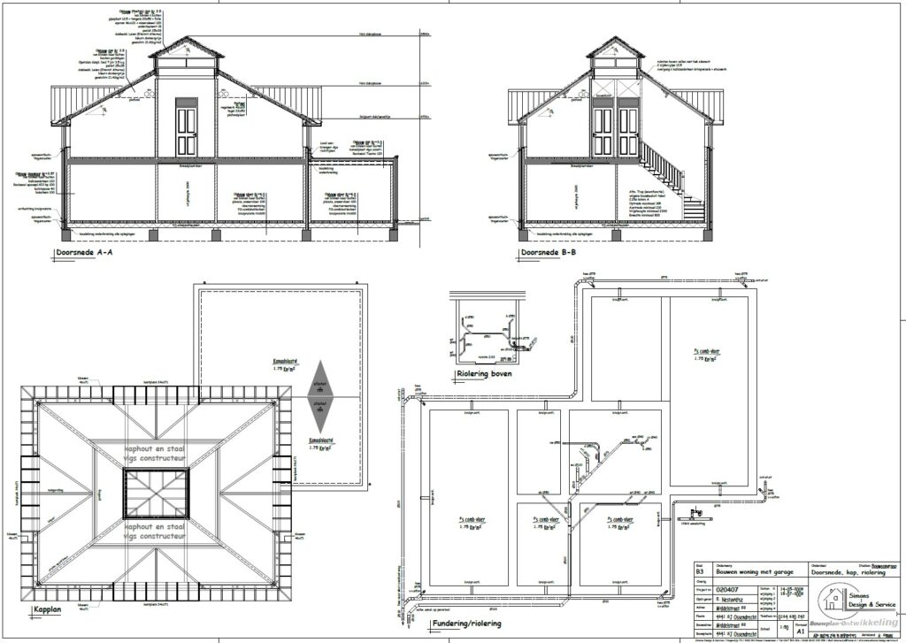
Bouwtekeningen

Onze tekeningen voldoen aan alle geldende eisen en normen. Met onze bouwtekeningen heeft u een betrouwbare basis voor een geslaagd project.

Ontwerp

Van schetsontwerp tot bestektekening, we begeleiden u bij het gehele ontwerpproces. Jarenlange ervaring, oneindige creativiteit. Wij zetten uw visie om in een ontwerp waar u trots op bent.

Vergunningaanvraag

Wij nemen u alle zorgen uit handen. Met onze kennis van de bouwregelgeving en onze ervaring in het indienen van vergunningaanvragen, zorgen wij ervoor dat uw project snel en soepel verloopt.

Visualisatie

Onze realistische 3D-visualisaties laten u zien hoe uw toekomstige ruimte eruit komt te zien. Van de indeling tot de kleurstelling, u ziet alles tot in detail. Zo kunt u gegarandeerd de juiste keuzes maken voordat u begint aan uw bouwproject.

Aan- en opbouw

Wil je meer ruimte creëren? Of het nu gaat om een extra slaapkamer, een ruime keuken of een gezellige serre, wij denken met je mee en ontwerpen een oplossing die perfect bij jouw wensen en budget past.

Bouwbegeleiding

Van ontwerp tot oplevering, wij staan voor u klaar. Onze expertise zorgt ervoor dat uw bouwproject binnen budget en op tijd wordt opgeleverd.

Waarom kiezen voor CAD Drawing & Modeling?

Ervaren team

Ons team bestaat uit ervaren bouwkundig tekenaars en ontwerpers met gedegen kennis van de bouwregelgeving.

Persoonlijke aanpak

We werken nauw met u samen en betrekken u actief bij het ontwerpproces.

Moderne technieken

We maken gebruik van de nieuwste CAD-software en BIM-technologieën voor optimale kwaliteit en efficiëntie.

Transparantie

U ontvangt regelmatige updates en heeft te allen tijde inzage in het ontwerpproces.

Klantgericht

We streven naar een optimale samenwerking met heldere communicatie en korte lijnen.

Neem vrijblijvend contact met ons op voor een offerte of meer informatie. Samen realiseren we uw droomproject!

Luxe villa

Met zijn unieke combinatie van baksteen en metaal is deze villa een echte eyecatcher. CAD Drawing & Modeling heeft bijgedragen aan de realisatie van dit bijzondere ontwerp, waarbij elk detail met zorg is uitgewerkt. Het resultaat is een woning met een tijdloze uitstraling en een hoogwaardige afwerking.

Kantoorpand

Met zijn opvallende combinatie van traditionele baksteen en modern zinken dak staat dit gebouw als een monument voor tijdloos design. CAD Modeling & Drawing heeft met zorg de baksteen- en dakmaterialen geselecteerd om een gevel te creëren die zowel visueel aantrekkelijk als duurzaam is. De nauwgezette aandacht voor detail in het ontwerp zorgt ervoor dat dit gebouw jarenlang een landmark zal zijn.